Podžbukne rolete Medle 20° predstavljaju idealno rješenje za moderne objekte, gdje se traži diskretan i estetski savršen izgled fasade. Ovaj model nudi inovativan dizajn s kutom od 20°, koji osigurava elegantnu integraciju roleta u fasadu, zadržavajući visoke funkcionalne performanse i nenametljiv vizualni dojam.
Predprozorna
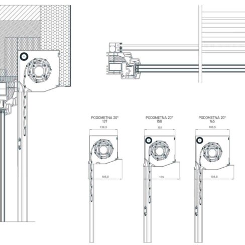
podžbukna roleta 20°
Izrađene od visokokvalitetnog aluminija, rolete modela 20° pružaju izvanrednu otpornost na vremenske uvjete, dugovječnost i vrhunsku izolaciju. Njihova konstrukcija omogućuje učinkovitu zaštitu od topline ljeti, hladnoće zimi, te vanjske buke, čime se značajno poboljšava energetska učinkovitost i udobnost prostora.
Opće značajke
- Pretprozorski podžbukni sustav
- Ugrađujemo ih kada ne želimo dodatno utjecati na vanjski izgled objekta.
- Ljepši oblik rolete postignut je s kutom zakrivljenosti servisnog pokrova od 20°.
- Kombiniranjem boja roleta i fasade koristimo za jedinstveni vanjski izgled.
- Zahtijeva prethodno planiranje.
Tehničke karakteristike
- Servisni pokrov je zakrivljen pod kutom od 20°.
- Izrađen je od ekstrudiranog aluminija.
- Donji pokrov je čvršći.
- Djelomično je vidljiv sa strane.
Komarnici
- Mogućnost ugradnje komarnika.
Paleta boja
- Boje uzoraka na zaslonima mogu se razlikovati od stvarnih. Za bolje razumijevanje boja preporučujemo posjet salonu.
Granične vrijednosti
Lamele
Upravljanje
Opis proizvoda
Model 20° nudi i mogućnost integracije mreže protiv insekata, što ih čini savršenim rješenjem za sve koji žele spoj estetike i funkcionalnosti. Opcije motoriziranog upravljanja dodatno povećavaju praktičnost, omogućujući jednostavno korištenje putem daljinskog upravljača ili pametnih sustava za automatizaciju doma.
Zahvaljujući vrhunskim materijalima i preciznoj izradi, podžbukne rolete Medle 20° odlikuju se lakoćom održavanja i pouzdanošću u dugogodišnjoj upotrebi. Njihov moderni dizajn i visoka funkcionalnost čine ih idealnim izborom za sve koji žele nenadmašnu kvalitetu i sofisticiran izgled svojih objekata.




