Nadprozorne aluminijske rolete MULTI-ROLLBOX predstavljaju svestrano rješenje koje kombinira funkcionalnost, estetski sklad i iznimnu prilagodljivost različitim građevinskim zahtjevima. Ovaj model dizajniran je tako da omogućuje integraciju više funkcija u jedinstven sustav, pružajući vrhunsku zaštitu, udobnost i energetsku učinkovitost.
Nadprozorna
aluminijska
roleta MULTI-ROLLBOX
Izrađene od visokokvalitetnog aluminija, rolete MULTI-ROLLBOX odlikuju se trajnošću, otpornosti na vanjske utjecaje i izvrsnim izolacijskim svojstvima. Zahvaljujući svojoj podžbuknoj konstrukciji, ovaj sustav omogućuje diskretnu ugradnju unutar fasade, čime se postiže moderan i nenametljiv izgled objekta.
Opće značajke
- Nadprzorna roleta
- Karakterizira ga atraktivan zaobljeni dizajn
- Jednostavna i ekonomična montaža na sve vrste prozora
- Potrebno je planiranje unaprijed
- Mogućnost potpunog zatamnjenja
- Mogućnost ugradnje sustava protiv loma
Tehničke karakteristike
- Izvrsna izolacija
- Jača konstrukcija
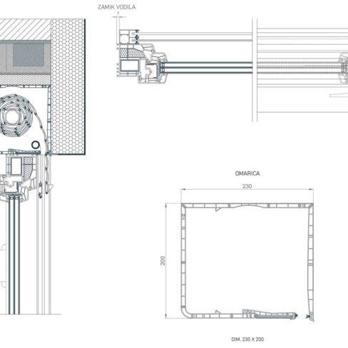
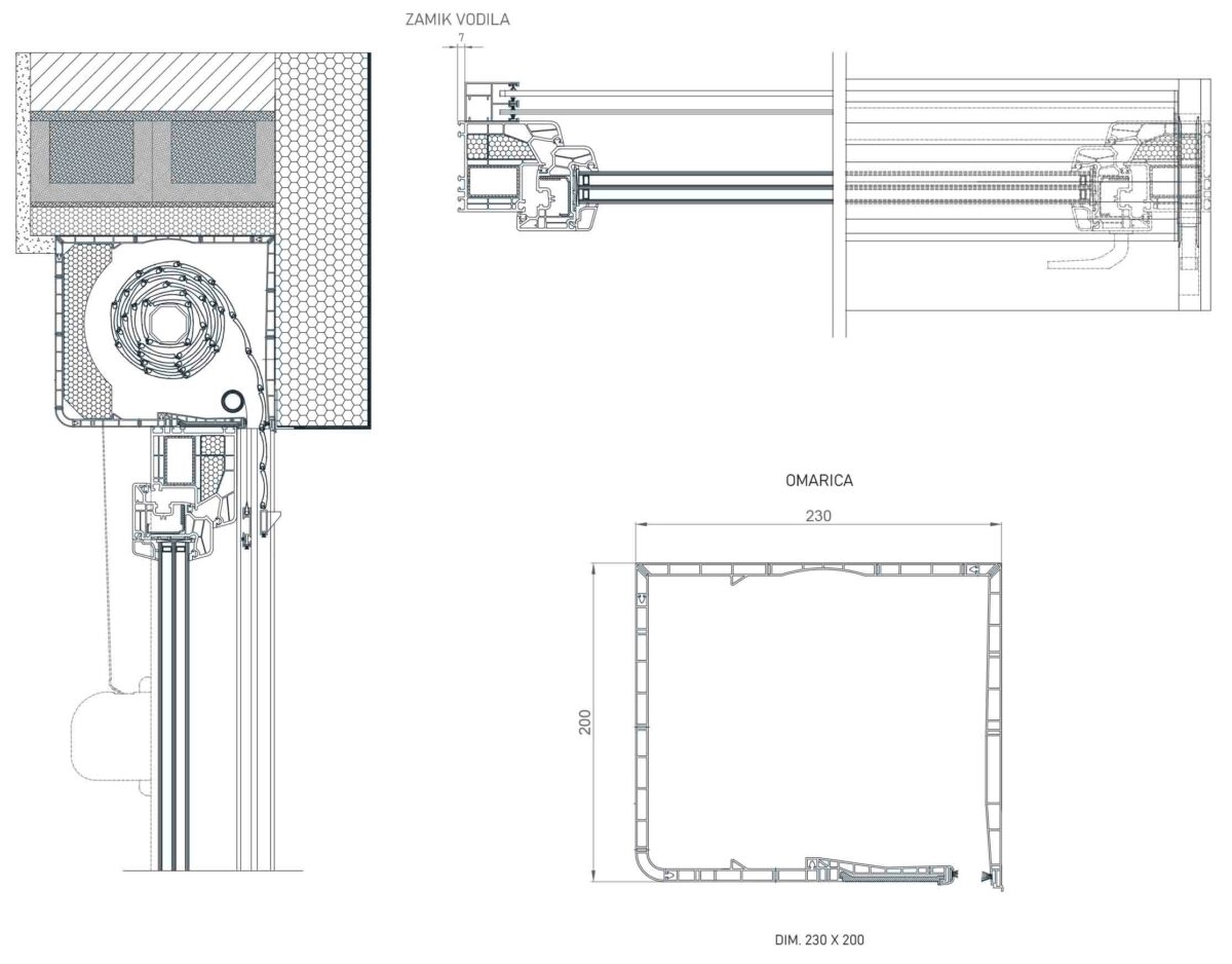
- Ograničenja za nevidljivu ugradnju sa servisnim poklopcem ispod (maks. dubina okvira prozora 73 mm) – inače je ormarić vidljiv iznutra
- Nije potrebno spajati letvice unutar kutije
Granične vrijednosti
Lamele
Upravljanje
Opis proizvoda
Posebnost modela MULTI-ROLLBOX je mogućnost kombinacije različitih funkcija unutar jedne kutije. Sustav podržava ugradnju roleta, mreža protiv insekata i dodatnih sjenila, što ga čini idealnim za projekte koji zahtijevaju visoku razinu fleksibilnosti i prilagodbe. Također, dostupne su opcije za motorizirano upravljanje, koje dodatno povećavaju praktičnost i jednostavnost korištenja.
MULTI-ROLLBOX rolete dostupne su u raznim bojama i završnim obradama, što omogućuje njihovo savršeno uklapanje u dizajn fasade. Ovaj model je optimalno rješenje za sve koji žele spojiti estetsku vrijednost, multifunkcionalnost i dugogodišnju pouzdanost u jednom proizvodu.




